Strona tymczasowo niedostępna...

Mieszkanie z loggią| 2 pokoje | Bez prowizji!

Mieszkanie na sprzedaż
608 465,00 PLN , Pow. 40,70 m2
Drukuj ofertę
Drukuj ofertę
Typ nieruchomości:
Mieszkanie
Powierzchnia:
40,70 m2
Typ transakcji:
sprzedaż
Liczba pokoi:
2
Lokalizacja:
Warszawa Białołęka , Marywilska
Rok budowy:
2024
Piętro:
2 na 3
Numer oferty:
GH962527
Cena za m2:
14 950,00 PLN
0% prowizji
0% PCC
Zakup od dewelopera
Oddane do użytku

Na sprzedaż mieszkania w nowej inwestycji zlokalizowanej w kameralnej, otoczonej zielenią części stolicy. To doskonała propozycja dla tych, którzy chcą cieszyć się bliskością natury, nie rezygnując z miejskich udogodnień.

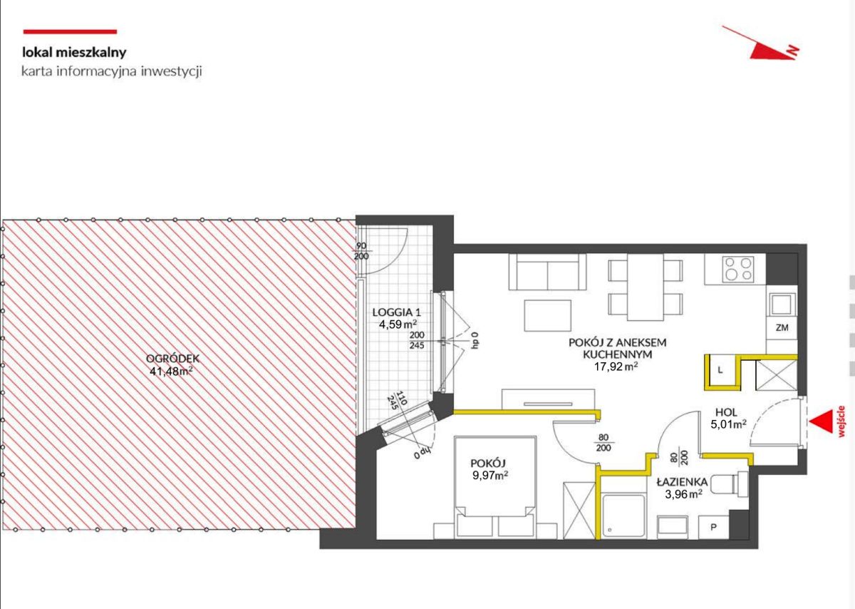
Szczegóły mieszkania:
Powierzchnia: 40,70 m²
Cena: 608465 zł
Piętro: 2 
Pokoje: 2
Układ pomieszczeń:
- pokój z aneksem kuchennym: 16,80 m²
- pokój: 12,89 m² 
- łazienka: 5,07 m²
- hol: 4,67 m²

- loggia: 3,73 m² 

Dlaczego warto wybrać tę inwestycję?
bliskie sąsiedztwo lasu i terenów rekreacyjnych,
place zabaw oraz strefy relaksu - komfortowe i bezpieczne miejsce dla rodzin,
punkty usługowe i sklepy dostępne na terenie osiedla oraz w jego pobliżu.

Świetna lokalizacja:
przystanek autobusowy tuż przy osiedlu - szybki dojazd do metra i centrum Warszawy,
w niedalekiej odległości centra handlowe: Factory Annopol, Atrium Targówek,
w sąsiedztwie Las i Park Bródnowski - idealne miejsce na spacery i aktywny wypoczynek.

Dodatkowe informacje:
szeroki wybór metraży i układów mieszkań,
miejsca postojowe w garażu podziemnym od 38 000 zł,
komórki lokatorskie od 6 000 zł/m².

Zapraszam na prezentację!
Tel. +48 883 660 704
Grzegorz Kościelnicki
Great House Biuro Nieruchomości

Niniejsze ogłoszenie jest wyłącznie informacją handlową i nie stanowi oferty w myśl art. 66, paragraf 1. Kodeksu Cywilnego. Sprzedający nie odpowiada za ewentualne błędy lub nieaktualność ogłoszenia.
Adres strony www: https://www.victoriadom.pl/warszawa/miasteczko-nova-sfera-3/246/
Nieprawidłowy adres E-mail